
專注于襯氟管道的研發生產銷售 Focus on R&D, production and sales of chemical equipment


手機瀏覽
更方便
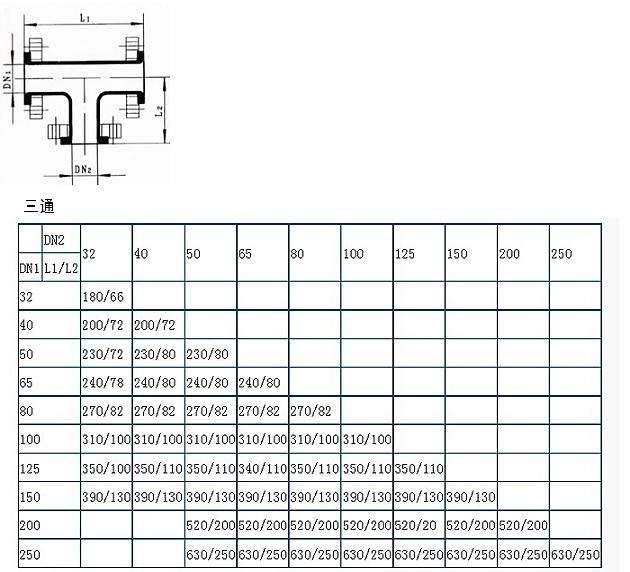
搪玻璃三通
搪玻璃三通:搪玻璃三通形式有活套法蘭連接的鑄鐵搪玻璃三通(B型),和鑄鋼及鋼管焊接的法蘭連接的搪玻璃管道(C型),應用的公稱壓力≤0.6Mpa,介質溫度適用于-10~200℃。主要用于改變流體方向的,用在主管道要分支管處。可以按管徑大小分類。搪玻璃三通是具有三個口子,即一個進口,兩個出口;或兩個進口,一個出口的一種化工管件,有T形與Y形,有等徑管口,也有異徑管口,用于三條相同或不同管路匯集處。三通的主要作用是改變流體方向的。
搪玻璃三通參數表
聯系我們
